宅地造成工事、上下水道引き込み工事しての引き渡し。
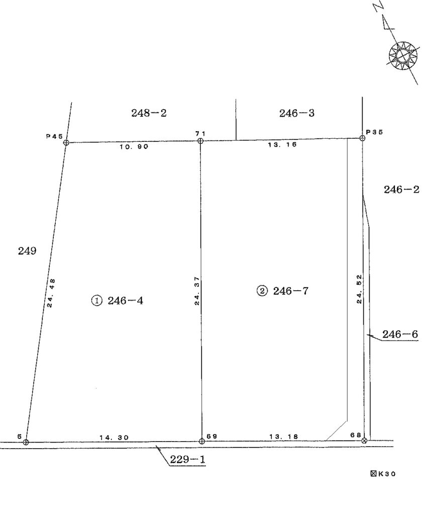
飯田市長野原(駄科駅)土地情報②区画
|
| 所在地 | 長野県飯田市長野原 |
|---|---|
| 交通 | JR飯田線 駄科駅 徒歩18分 |
| 地目 | 畑 | 用途地域 | 無指定 |
|---|---|---|---|
| 都市計画 | 地勢 | 平坦 | |
| 土地面積 | 321.00m²(97.10坪) | 土地面積計測方式 | |
| セットバック | 有 | セットバック量 | |
| 建ぺい率 | 60% | 容積率 | 100% |
| 土地権利 | 所有権 | 接道状況 | |
| 接道方向1 | 南 | 接道間口1 | |
| 接道種別1 | 公道 | 接道幅員1 | 2.8m |
| 現況 | 取引態様 | 仲介 | |
| 引渡/入居時期 | 相談 | ||
| 周辺環境 |
小学校:飯田市立竜丘小学校 1729m 幼稚園:認定こども園飯田市竜丘保育園 1758m 中学校:飯田市立緑ケ丘中学校 2562m スーパー:キラヤ竜丘店 1314m 内科:みかさクリニック 2275m ドラッグストア:ドラッグストアマツモトキヨシ 飯田駄科店 1379m コンビニ:ローソン 飯田駄科店 1323m |
||
| 設備・条件 | プロパンガス 公営水道 排水下水 文化財保護法、景観法、宅地造成・上下水道引き込み工事後の引き渡し 上水道加入金 77000円、下水道受益者負担金 350,000円 |
||
| 物件番号 | 202786687 | ||
| 自社物 | 先物 | 状態 | 売出中 |
※物件掲載内容と現況に相違がある場合は現況を優先と致します。
問合せ先
ハウスランド飯田店
〒395-0003 長野県飯田市上郷別府1154-1
フリーダイヤル 0120-23-7134
TEL 0265-23-7171 FAX 0265-23-7179
【営業時間】
平日 AM8:00~PM5:00
土・日・祭日 AM9:00~PM6:00
【定休日】
毎週水曜日・年末年始・夏季
その他(お問い合わせください)
宅建免許番号: 長野県知事 (10) 第2787号
問合せフォーム









